โครงการงานก่อสร้างอาคารศูนย์พัฒนาสมรรถภาพและการเรียนรู้ สถาบันการบินพลเรือน

Back to Top


ลักษณะโครงการ

โครงการงานก่อสร้างอาคารศูนย์พัฒนาสมรรถภาพและการเรียนรู้ สถาบันการบินพลเรือน เป็นอาคารสูง 4 ชั้น มีพื้นที่ใช้สอยอาคารประมาณ 7,960 ตร.ม.
ขนาดพื้นที่ดินประมาณ 31 x 69.35 เมตร คิดเป็น 2,105 ตารางเมตร หรือคิดเป็น 1 ไร่ 126.25 ตารางวา โดยมีฟังค์ชั่นการใช้งานหลักประกอบด้วย



ทัศนียภาพจำลองพื้นที่โครงการ


ฟังก์ชั่นการใช้งานหลักของอาคาร
• เป็นพื้นที่ร้านค้าและพื้นที่ส่วนกลางสำหรับพักผ่อนและใช้งานร่วมกัน/ จัดกิจกรรมชั่วคราว
• เป็นพื้นที่ส่วนกลางสำหรับใช้งานร่วมกันและสโมสรนักศึกษาและชมรมต่างๆ
• เป็นพื้นที่ของแผนกกิจการนักศึกษาห้องประชุม ห้องสัมมนา โถงเอนกประสงค์
• พื้นที่สำหรับพัฒนาสมรรถภาพร่างกายเช่นห้อง Fitness พร้อมห้องน้ำ Locker ชาย-หญิง
• เป็นพื้นที่สนามกีฬาในร่มขนาดมาตรฐาน ได้แก่ สนามฟุตซอล, สนามบาสเกตบอลและสนามวอลเลย์บอล และสามารถปรับรูปแบบการใช้งานเป็นพื้นที่เอนกประสงค์

สถานที่ตั้งโครงการ
สถาบันการบินพลเรือน กรุงเทพฯ ปัจจุบันตั้งอยู่ในที่ดินของราชพัสดุ (กรมธนารักษ์) อาคารที่จะทำการก่อสร้างตั้งอยู่บริเวณพื้นที่ที่ตั้งสถาบันการบินพลเรือน บริเวณถนนพหลโยธิน แขวงจอมพล เขตจตุจักร กรุงเทพมหานคร บริเวณสถานีขนส่งหมอชิต (เดิม) เขตจตุจักร กรุงเทพมหานคร มีพื้นที่โครงการประมาณ 27-1-58 ไร่ โดยมีแนวเขตติดต่อที่ดินโดยรอบ ดังนี้

แนวเขตติดต่อที่ดินโดยรอบ
ทิศเหนือ      ติดกับถนนภายในโครงการ กว้าง 7.00 ม.
ทิศใต้       ติดกับรั้วอาคารติดกับกรมขนส่งทางบก
ทิศตะวันออก     ติดกับอาคารห้องสมุด และอาคารเรียน Simulator
ทิศตะวันตก    ติดกับอาคารหอประชุม 1



ที่ตั้งโครงการอยู่ในผังบริเวณหลัก


ขอบเขตของงาน/ลักษณะทั่วไปของอาคาร
   โครงการก่อสร้างอาคารศูนย์พัฒนาสมรรถภาพและการเรียนรู้ สถาบันการบินพลเรือน กรุงเทพมหา นคร ขนาดพื้นที่ดินประมาณ 31 x 70 เมตร เป็นอาคารขนาดสูง 4 ชั้น (3 ชั้นและชั้นลอย) แบ่งเป็นพื้นที่ภายในอาคารประมาณ 7,960 ตร.ม. และพื้นที่ภายนอกอาคาร ได้แก่ งานปรับภูมิทัศน์ภายนอก งานระบบสาธารณูปโภคที่เกี่ยวข้องเพื่อรองรับการใช้งานให้กับอาคาร สวนชั้นหลังคาเป็นโครงสร้างเหล็กวัสดุมุงหลังคาด้วย Metal Sheet ปกคลุมอาคารโดยมีงานผนังตกแต่งภายนอกหุ้มด้วยวัสดุคอมโพสิท และมีโครงสร้างเป็นโครงสร้างคอนกรีตเสริมเหล็กชั้นดาดฟ้า (Roof Garden) ทำระบบกันซึมแบบ Membrane เป็นพื้นที่สวนปลูกไม้พุ่ม และไม้ยืนต้น ในพื้นที่ประมาณ 375 ตารางเมตร
   มีลิฟต์ทั้งหมด 1 ชุด เป็นลิฟต์โดยสารสำหรับบุคลากรและรองรับสำหรับใช้เป็นลิฟต์ขนโดยมีบันไดหลักสำหรับใช้งานในการขึ้น-ลงอาคารตั้งแต่ชั้นใต้ดินถึงชั้น 3 และมีบันไดหนีไฟรองรับเพิ่มเติมจำนวน 4 จุดในตำแหน่งบริเวณมุมอาคารทั้ง 4 มุมตึก
ผนังภายนอกทั่วไป
   เป็นผนังกระอลูมิเนียมและระบบผนัง Curtain wall เป็นระบบที่ยึดหรือแขวนผืนผนังกระจกเข้ากับโครงสร้างของอาคารบริเวณหน้าคาน สันของแผ่นพื้น หรือสันของแผ่นพื้นไร้คาน โดยจะประกอบกระจกเข้ากับโครงเหล็กหรืออะลูมิเนียมซึ่งมีทั้งรูปแบบที่เห็นโครงในแนวตั้ง-นอนทั้งภายในและภายนอกอาคาร และรูปแบบที่ซ่อนโครงไว้ภายในอาคารส่วนภายนอกจะเห็นเป็นกระจกประกอบชนกัน และ Aluminium Composite ชนิด FR 4 มม.
หน้าต่างทั่วไป
   วงกบ/กรอบบาน Aluminium NA โครงระบบ 2 SIDE ลูกฟักกระจกลามิเนต หนา 12.76 มม. (Clear Glass 6 mm. Anneal + PVB 0.76+Green SNG Glass 6 mm. Heat strengthened)



ทัศนียภาพจำลองโครงการภายนอก (ด้านซ้าย)


พื้นที่ใช้สอยของอาคารในแต่ละชั้น
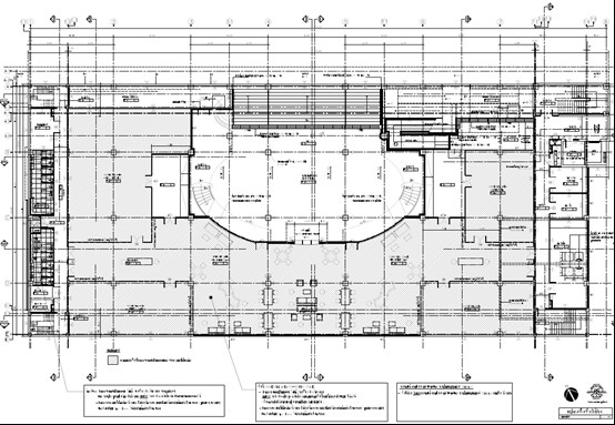
ชั้นใต้ดิน เป็นพื้นที่ร้านค้าและพื้นที่ส่วนกลางสำหรับพักผ่อนและใช้งานร่วมกัน พื้นที่ใช้สอยรวมประมาณ 1,990 ตร.ม. ประกอบด้วย
- โถงเอนกประสงค์ / จัดกิจกรรมชั่วคราว
- จะต้องมีงานเตรียมการตามรูปแบบตัดลดงานในชั้นใต้ดินประกอบด้วย .
   - Sitting Court/ Co-Working Space ห้องน้ำชาย-หญิง
   - Shop (สินค้าอุปโภค ,อาหาร, ของว่าง, เครื่องดื่ม) ศูนย์หนังสือ/เครื่องเขียน
   - ห้องเก็บอุปกรณ์,ห้องเครื่อง ,ห้องไฟฟ้า,โถงลิฟต์, โถงบันได, ทางเดิน
   - ตัดลดงานเฟอร์นิเจอร์และป้ายสัญลักษณ์ (Signage) ภายในชั้นใต้ดินทั้งหมด



แบบแปลนพื้นชั้นใต้ดินและทัศนียภาพจำลอง Co-Working Space


ชั้นที่ 1 เป็นพื้นที่ส่วนกลางสำหรับใช้งานร่วมกัน พื้นที่ใช้สอยรวมประมาณ 1,642 ตร.ม. จัดลำดับการเข้าถึงพื้นที่ใช้สอย โดยแบ่งเป็น 4 โซน ประกอบด้วย
โซน Public
- โถงเอนกประสงค์ / โถงทางเข้า/ พื้นที่จัดกิจกรรม .
- โถงลิฟต์, โถงบันได, ทางเดิน
   โซน Semi Public
- ห้องพยาบาล/ห้องพักฟื้น
โซน Semi Private
- ห้องพื้นที่กีฬา Table Tennis
- ห้องน้ำชาย-หญิง
- ห้องเก็บอุปกรณ์,ห้องเครื่อง ,ห้องไฟฟ้า
- โถงลิฟต์, โถงบันได, ทางเดิน



แบบแปลนพื้นชั้นที่ 1




ทัศนียภาพจำลองโครงการภายนอก (ด้านหน้า)


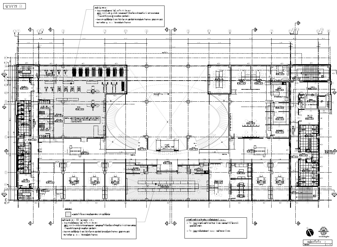
ชั้นที่ 2 เป็นพื้นที่ของแผนกกิจการนักศึกษา และพื้นที่ส่วนกลางสำหรับทุกชมรมใช้งานร่วมกัน พื้นที่รวมประมาณ 1,742 ตร.ม. จัดลำดับการเข้าถึงพื้นที่ใช้สอยต่างๆ โดยแบ่งเป็น 4 โซน ตามลักษณะของกิจกรรม ประกอบด้วย
โซน Public
- โถงพักคอย, เอนกประสงค์
- โถงลิฟต์, โถงบันได, ทางเดิน
โซน Semi Public
- ห้องชมรม 5 ห้องและห้องดนตรี/ห้องสโมสร
โซน Semi Private
- แผนกกิจการนักศึกษา /ห้องประชุม 10 ที่
- ห้องประชุม 59 ที่นั่ง, ห้องควบคุม และ Pantry
โซน Service
- ห้อง Fitness พร้อมห้องน้ำ Locker ชาย-หญิง
- ห้องเก็บอุปกรณ์
- ห้องน้ำชาย-หญิง, คนพิการ, ห้องเครื่อง, ห้องไฟฟ้า



แบบแปลนพื้นชั้นที่ 2


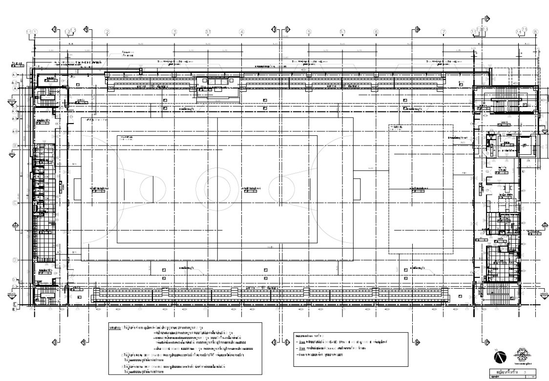
ชั้นที่ 3 เป็นพื้นที่สนามกีฬาในร่มขนาดมาตรฐาน ได้แก่ สนามฟุตซอล (20 ม. X 38 ม.), สนามบาสเกตบอล (15 ม. X 28 ม.) และสนามวอลเลย์บอล (9 ม. X 18 ม.) จัดในรูปแบบเอนกประสงค์ปรับเปลี่ยนการใช้งานแต่ละชนิดกีฬาได้ พร้อมมีอัฒจันทร์แบบถาวรและเลื่อนเก็บได้ ทั้ง 2 ฝั่งของสนาม พร้อมส่วนบริการอาคาร พื้นที่ใช้สอยรวมประมาณ 2,218 ตร.ม. ประกอบด้วย - สนามกีฬาในร่มได้แก่สนามฟุตซอล, สนามบาสเกตบอลและสนามวอลเลย์บอล
- ห้องน้ำ-ล็อกเกอร์
- ห้องเก็บอุปกรณ์กีฬา
- ห้องปฐมพยาบาล
- ห้องน้ำชาย-หญิง, คนพิการ, Janitor
- ห้องไฟฟ้า, งานระบบ, Shaft
- ถงลิฟต์, โถงบันได, ทางเดิน



แบบแปลนพื้นชั้นที่ 3





ทัศนียภาพจำลองพื้นที่สนามกีฬาในร่มขนาดมาตรฐาน ชั้นที่ 3


ชั้นที่ 4 เป็นชั้นลอย พื้นที่ห้องรับรอง และส่วนบริการอาคาร พื้นที่ใช้สอยรวมประมาณ 369 ตร.ม. ประกอบด้วย
- ห้องรับรอง + ห้องน้ำส่วนตัว.
- ห้องควบคุมระบบเสียง, แสง สนามกีฬา/ห้องเครื่อง
- ห้องน้ำ-ล็อกเกอร์ชาย
- โถงลิฟต์, โถงบันได, ทางเดิน



แบบแปลนพื้นชั้นที่ 4


งานภูมิทัศน์
มีพื้นที่สีเขียวและรักษาระบบนิเวศน์ของพื้นที่ให้สอดคล้องกับสภาพธรรมชาติของพื้นที่เดิม พร้อมกับกำหนดการเปิดมุมมองและนำสายตาเพื่อสร้างภาพลักษณ์ที่สวยงาม



 สำนักงานโครงการก่อสร้างอาคารศูนย์พัฒนาสมรรถภาพและการเรียนรู้
         สถาบันการบินพลเรือน กรุงเทพมหานคร
         ถนนพหลโยธิน แขวงจอมพล เขตจตุจักร กรุงเทพมหานคร 10900
         โทร : 084-937-1166
         อีเมล์ : tpfc.cm.catc@gmail.com
จำนวนผู้เข้าชมเว็บไซต์
วันนี้
61
เดือนนี้
322
จำนวนผู้เข้าชมทั้งหมด
1,591